Halle/Lager/Produktion zur Miete in Göppingen / Jebenhausen
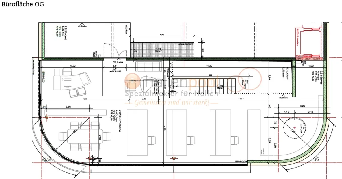
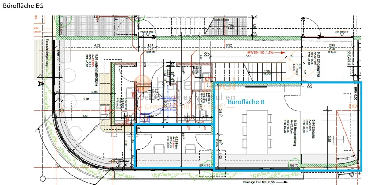
GÖPPINGEN NEUBAU TOP MODERN ✓ PROVISIONSFREI ✓ Lager-/Produktion (1.015 m²) & Büros (143 m²) teilbar
Preis auf Anfrage
Miete zzgl. NKPreise & Kosten
Standort
73035 Göppingen / Jebenhausen
Preise
- Miete zzgl. NK Preis auf Anfrage
Die Immobilie
Halle/Lager/Produktion zur Miete
- Objekt-Nr NK233
- verfügbar ab nach Absprache
- Provisionspflichtig Nein
- Gewerbliche Nutzung möglich Ja
- Zustand Erstbezug
Stellflächen
- Anzahl Stellplätze 20
- Stellplatzmiete 0 €
- Stellplatzpreis 0 €
- Stellplätze 20
Weitere Flächen
- Lagerfläche (ca.) 1.015 m²
- Freifläche (ca.) 2.400 m²
- min. teilbare Fläche (ca.) 120 m²
- Hallenhöhe (ca. in m) 6.50
Ihr Ansprechpartner
Herr Norbert Kiesel
Telefon: 0170 3244907